Pada umumnya, lahan / site yang ada di perumahan berbentuk memanjang ke belakang. Namun ada kalanya lahan / site yang didapatkan berbentuk memanjang ke samping. Hal ini pernah dijumpai penulis. Namun dikarenakan kejadian yang sudah lama, maka denah kali ini merupakan denah contoh, sebagai koleksi Ruang Desain.
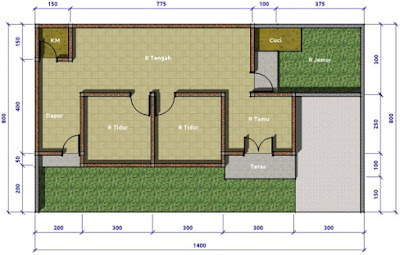
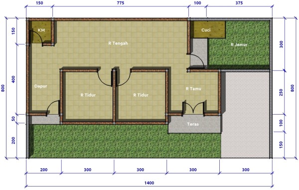
Dalam denah berikut, Ruang Desain membuat 2 R. tidur dengan bukaan ventilasi ke bagian depan rumah. Antara batas dinding dan batas lahan / site diberi jarak sekitar 2m sebagai GSB, juga sebagai area pembatas polusi dari jalan. Ruang tengah diletakkan di bagian belakang rumah. Pencahayaan dan ventilasi maksimal ruang ini, didapatkan melalui area samping dekat area tamu. Dapur di letakkan di sebelah depan rumah, sehingga mendapatkan akses ventilasi langsung ke luar rumah.
Ukuran lahan : 14m x 8m
Luas bangunan : + 67m2 ( termasuk teras )
Data ruang :
- 2 R. Tidur
- R. Tengah
- Dapur
- 1 KM
- R. Tamu
- T. Cuci
- Teras






0 komentar:
Posting Komentar